

Fonksiyonel yeni kullanım alanları, siyah ve beyazın asaleti ile bohem-burjuva stili düzenlemeler, parlak ve ışıldayan dokular, ahşabın sıcaklığı, gündüzü ve geceyi aydınlatan rengârenk lokal ışıklar, akıllı ve dijital sistemler ile eğlencenin donatıldığı bir mekan ve yansıyan yaşam tarzının tasarımı.
Yapım Yılı:2014 – 2015
Tasarım ve Proje:2 Ay
Uygulama:9 Ay
Proje:İç mimari proje tasarımı ve uygulama
Tip:Konut
Durum:Tamamlandı
Lokasyon:İstanbul / Türkiye
Boyut:180 m²
Fotoğraflar:Ali Bekman


Günlük kullanıma sunulan masa ise gerekli durumlarda ilave bir ada tezgâh olarak da hizmet vermesi ev sahibine ilave faydalar sağlıyor.




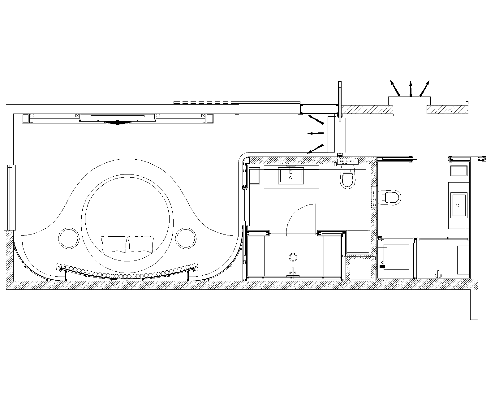
Tartışmasız beyazın asaleti ebeveyn banyoda da hâkim kılındı, zeminden duvarlara taşınan parlak dokulu porselen seramik, paslanmaz parlak metaller elegan sadeliği vurguluyor. Banyo aynasında kullanılan TV, Magic Mirror ayna sayesinde günlük geçen basit anlara ayrı bir eğlence katıyor.




Yaşam tarzına göre şekillenen, bireysel çözümler sunan kişiye özel elbise, aksesuar, çanta ve ayakkabı odaları. Bugün ve yarın tüm değişen ve eklenen ihtiyaçlara göre yeniden şekillenebilen modüler çözümler sağlamakta.






Mekansal hayalleri gerçeğe dönüştüren, mimari ve iç mimari tasarımlarını, gözlemlerinden ve teorilerinden çıkardığı pratikle uygulayan bir iç mimarlık ofisidir.