

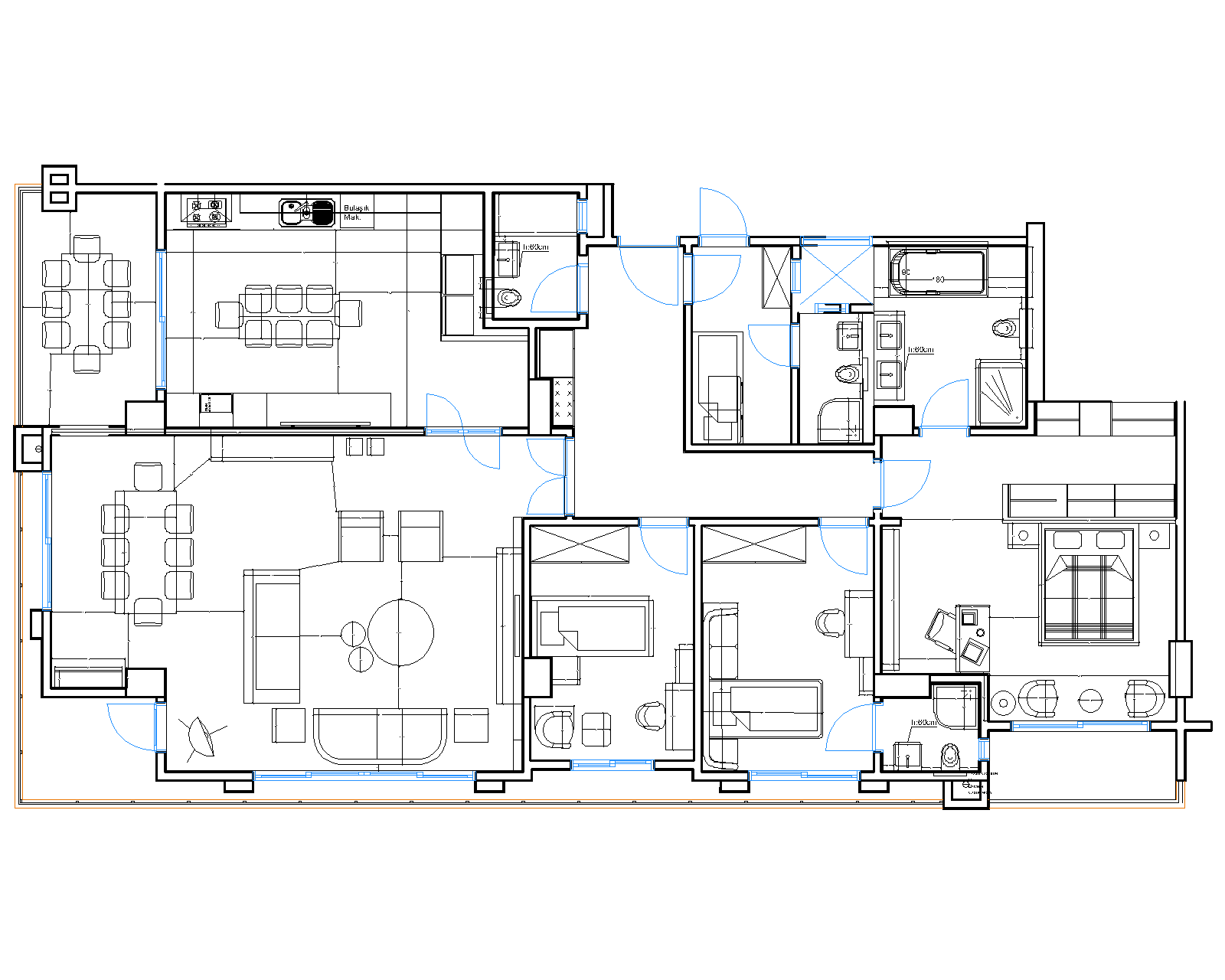
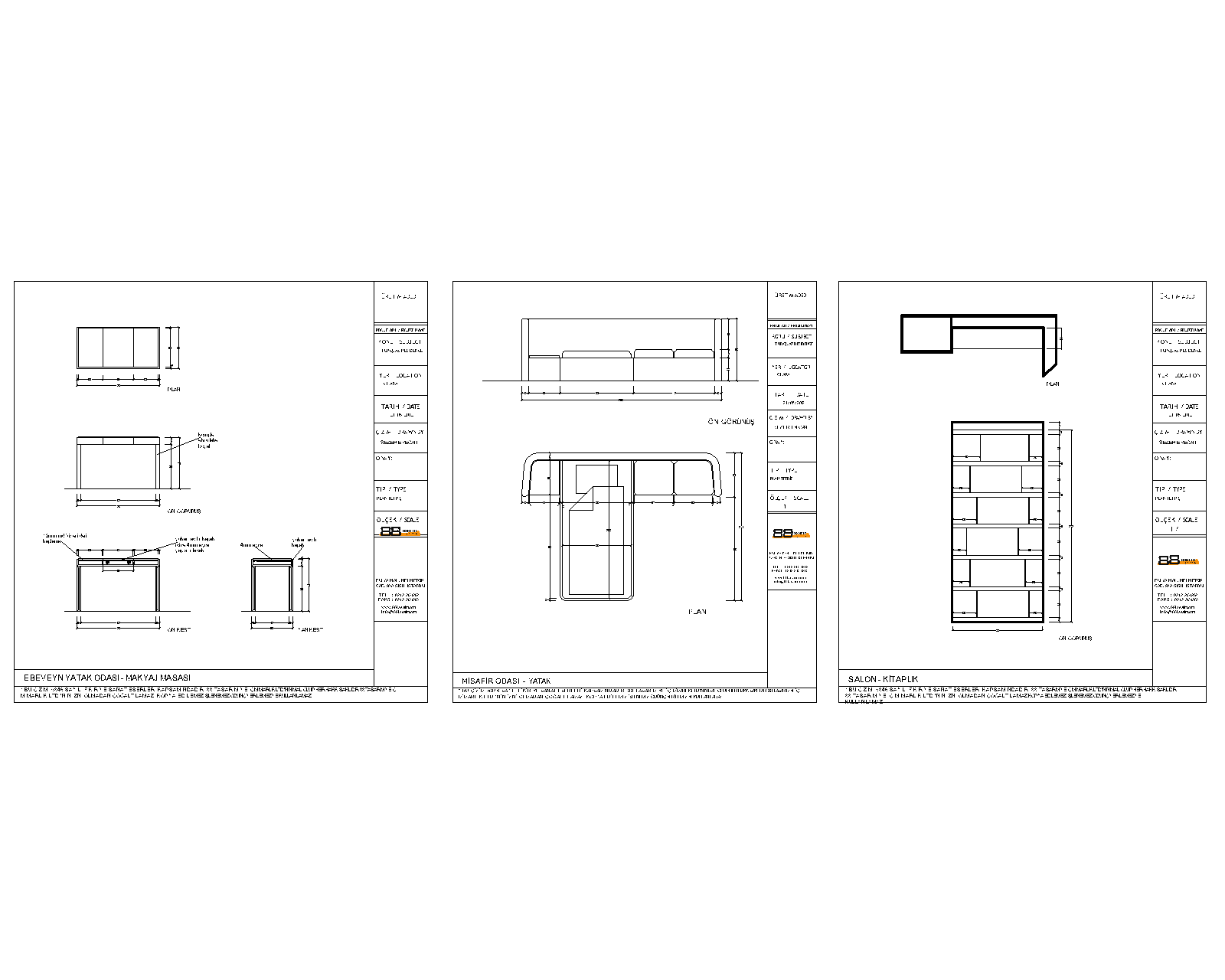
Ghana’daki Afrika kökenli farklı kültürlerin beğenisine sunulan projede, yerel tercih ve zevkler analiz edilerek tasarlanan bir iç mimari konsept proje çalışıldı. Projenin standart demirbaşları olan dekorasyona yönelik mutfak, kapı, süpürgelik, giysi dolapları, banyo ve banyo dolapları gibi mobilyalar, zemin ve duvar kaplamaları, asma tavanlar genel proje dahilinde tasarlandı.
Yılın 365 günü ortalama 32 derece sıcaklık ve yoğun nem oranı olan ülkede yoğunlukla tercih edilen dokular kullanıldı. Zeminde seramik malzemeyi kullanmaya alışkın olan bölgede iklime dayanıklı ahşap parkenin mekana kattığı sıcaklık sunuldu. Renklerde krem, toprak ve bej tonları kullanılarak stil dengesi öne çıkarıldı. Lekesel olarak parlak bordo ve kiremit renkleri ile mekanın enerjisi yükseltildi.
Yapım Yılı:2012 – 2013
Tasarım ve Proje:6 Ay
Uygulama:1 Ay
Proje:İç mimari proje tasarımı ve uygulama
Tip:Residence
Durum:Tamamlandı
Lokasyon:Accra / Ghana
Boyut:220 m²
Fotoğraflar:Berkan Yenigün










Mekansal hayalleri gerçeğe dönüştüren, mimari ve iç mimari tasarımlarını, gözlemlerinden ve teorilerinden çıkardığı pratikle uygulayan bir iç mimarlık ofisidir.